生物洁净室的应用越来越广泛,目前集中在医院手术室和病房、制药厂、生物安全实验室、动物房等。同样级别的洁净室,由于应用领域不同,要求也有很大区别。
首先,不同类型的生物洁净室必须遵循相应的规范要求,不了解这些规范,是无法进行设计施工的。
目前针对不同类型生物洁净室的一些规范如表1 所列。只有熟悉各行业的特点,充分掌握各规范的要求,才能切实做好生物洁净室的设计、施工、调试等工作。
首先,不同类型的生物洁净室必须遵循相应的规范要求,不了解这些规范,是无法进行设计施工的。
目前针对不同类型生物洁净室的一些规范如表1 所列。只有熟悉各行业的特点,充分掌握各规范的要求,才能切实做好生物洁净室的设计、施工、调试等工作。

表2 中将各参数作了详细的比较。应当指出,表2 中的参数要求并不详尽,应以原规范为准。


了解了不同生物洁净室的不同要求,下面谈谈在生物洁净室设计施工中遇到的几个问题。
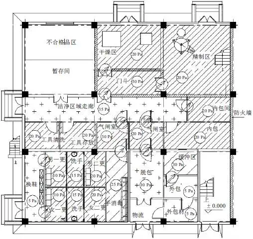
首先是平面布置方面的问题。
这个问题在药厂洁净厂房和生物安全实验室的平面设计中尤为突出,主要的问题就是平面过于复杂。
的确,在药厂平面设计中,应尽量保证洁净区不受污染,做到合理分区,洁污分开,人流、物流明显,但一定要避免矫枉过正。由于一些行业主管部门在制订验收标准时,缺乏专业知识,对洁净室的原理和特点了解不够,往往将洁净室过于神秘化,复杂化,因此对洁净室平面布局过于苛刻,造成很多不必要的麻烦。
首先是平面布置方面的问题。
这个问题在药厂洁净厂房和生物安全实验室的平面设计中尤为突出,主要的问题就是平面过于复杂。
的确,在药厂平面设计中,应尽量保证洁净区不受污染,做到合理分区,洁污分开,人流、物流明显,但一定要避免矫枉过正。由于一些行业主管部门在制订验收标准时,缺乏专业知识,对洁净室的原理和特点了解不够,往往将洁净室过于神秘化,复杂化,因此对洁净室平面布局过于苛刻,造成很多不必要的麻烦。

这个问题在缓冲室的设置上尤为突出。例如某药厂人员进入洁净厂房的过程是这样的:换鞋、一更、缓冲、二更、洗手、消毒、缓冲、洁净走廊、三更、缓冲或手消、毒高级别洁净室,由此,工作人员在进入高级别洁净室工作前,需要进出9个房间,开启关闭18扇门,其复杂程度可想而知。
另外,很多药厂由于规模小投资少,厂房十分紧凑,以至于每间辅助间的面积只有几平方米,甚至只有2平方米,于是工作人员在几乎不能同时容下2人的房间里,不停的开门、转身、关门,以至于近乎晕头转向。
要求严格是好事,但如果矫枉过正就会适得其反,很多工人为了进出方便,往往很多门都不关,很多房间形同虚设。将可以合并的房间合并,将没有必要设置的房间取消,是解决这一问题的办法。例如洗手消毒完全可以当作缓冲间,另外对于低级别洁净室之间,如万级和10万级洁净室之间,不一定非要设置缓冲室,有些场合,三更的设置也是可以考虑的。
缓冲间的设置主要是通过进出两门的不同时开启起到气闸的隔离作用,如果严格管理,一些辅助房间如二更等,完全可以起到缓冲作用。另外,在10万级和万级房间也没有一定设置缓冲的必要。
10万级房间和万级房间内的空气含尘浓度不象一些非专业人士想象的那样相差10倍。门一开启就会污染。事实上,两者相差不多,例如兽药GMP(2002)中规定,10万级房间最低换气次数是15 次/h,万级房间最低换气次数是20 次/h,相差不多,另外由于房间体积普遍较小,例如对于4m²的房间,5 次/h的换气次数仅有50m³/h 左右的送风量,而这50m³/h的送风量是较难调整的,另外,无论设计施工都要适当留有一定余量。
所以,从若干药厂来看,在人员进出路线上的一些小房间,除了名义上的洁净度级别不同外,其换气次数和空气含尘浓度没有什么区别。有时所谓的10万级房间的含尘浓度比万级房间还要低。
以上的观点证明不能以主观意识制订验收标准,应该充分以实际出发考虑问题。精简平面并不影响实际功能,而且可以使人员进出方便简单,节省工程造价,扩大有效使用面积,何乐而不为。同样的问题还出现在三级生物安全实验室的建设中,行业主管部门除了要求加设很多缓冲外,还要求做到人流、物流、洁物、污物各走不同路线,完全分开,但事实上是不可能做到的,也没有必要。
一些政策制订人为强调重视程度或迎合一些需要,提出的“生物安全怎么强调都不过份”的说法是不负责任的,对于工程技术人员来讲必须一切从实际出发,凡事都要有度。只要能完全满足安全需要即可,层层加码是专业知识不足,缺乏自信心的表现。
自SARS以来提出的P3实验室设“三区两缓”(即实验室分为清洁区,半污染区和污染区,不同区域之间必须设缓冲)的要求有待商榷,从国外的一些资料也可以看到,一些发达国家的生物安全实验室平面比我们简单的多,一些危险度不高的实验室设置“两区一缓”就足够了。
制订“三区两缓”的人可能设计工作接触不多,事实上,由于生物安全实验室对压差要求极为严格,“三区两缓”往往要6、7层房间,层层负压,而且要严格保证,无论从设计、施工以及自控上,都是极难保证的。所以还是要从实际出发,让生物安全实验室真正做到安全、实用、经济、可行。
在生物洁净室施工中有一个突出的问题就是圆弧角的使用。
生物洁净室主要以控制细菌等微生物为根本目的,而微生物极易在一些角落里滋生,因此生物洁净室应易于清扫,尽量减少死角,因此在JGJ 71-90《洁净室施工及验收规范中》的第2.3.8条规定:踢脚板部分施工时应与墙面齐平或略缩进2~3mm。
当踢脚板与地面材料相同时可做成小圆角,其圆角半径R 应大于等于50mm;当踢脚板与地面材料不同时,应用弹性材料嵌固。除地面与墙面的交角要求可设圆角外,对其他部位并未做规定。
现在普遍的做法是将所有交角均加装铝合金圆角,由于制作粗糙,使得很多工程的圆角流于形式,甚至作用适得其反。对于墙壁之间,墙壁与顶棚之间的圆角,本来作用不是很大,现在成了施工单位掩盖粗糙接角的“遮羞布”。
对于墙面与地面的交角,其实是十分关键的,但往往成为藏污纳垢,滋生细菌的场所。原因在于:由于圆弧角有厚度,在圆角与板壁和地面的两个交角处,便会形成两个细小的接缝,由于地面、板壁不平,在接缝处往往有很多缝隙,很多施工单位偷工减料,没有打胶密封,有的即使打胶了,也会有开裂的现象。因此本来的目的是为了消除卫生死角,而实际情况却增加了很多隐患。
这种情况在平时不明显,在洁净室进行卫生清扫时就会暴露无遗,地面上一旦有水,水会通过缝隙渗到隔壁房间,圆角下经常满是水渍,成为细菌滋生的绝好场地。造成这种情况的根本原因是对规范的规定没有真正领会,只是流于形式。
对于我国的生物洁净室建设,我们已不能仅仅满足于那种解决“有与没有”的层面,必须提高层次,做到真正实用,而不是应付认证工作,不仅要建,而且一定要建好。
有几种做法值得推荐:
1.安装圆角之后,铺设一定厚度的自流坪地面,彻底消除地面接缝。
2.安装圆角之后,铺装整体卷材地面,然后将卷材沿圆角上铺至壁板,使圆角和地面成为一体。
3.采用建筑材料(如胶砂)砌筑圆弧状的壁板基座,基座与地面做同样的处理,如刷涂料等,使地面和基座成为一体,而且基座作为踢脚部分与墙面齐平或低于墙面。作为洁净室地面,现浇水磨石具有耐磨、完整、耐腐蚀、耐刷洗、造价低廉的特点,在低级别洁净室中是完全可以采用的。
但一些采用水磨石地面的工程却出现了问题:空气中的含尘浓度居高不下,尤其是≥5μm 的大颗粒严重超标,排除过滤器泄露的可能外,发现根本原因在与水磨石地面。很多地方掉灰,甚至可以用指甲划出粉末。
出现这种问题的原因是因为水泥标号不够。在JGJ 71-90《洁净室施工及验收规范》的第2.2.2 条中对洁净室的地面做法有这样的规定:
洁净室涂料地面水泥砂浆基底的水泥标号不得低于425 号;水磨石地面应现浇,所用小石子直径为6~15mm,水磨石磨细后,宜用不挥发的护面材料打涂。一些认证人员认为水磨石地面不可行的观点是片面的,只要遵守规范规定,现浇水磨石完全可以是一种物美价廉的地面材料。一些施工单位偷工减料,采用低标号水泥,玻璃嵌条,而且表面不做任何处理。
其实生物洁净室的特点还很多,实际工程中的问题也很多,我们只有充分了解不同类别洁净室的不同要求和特点,熟悉规范的规定,才能真正把生物洁净室建设好。
广州嘉东提供专业的实验室设计规划,涉及1000+行业案例,规划设计众多行业类型实验室,经验丰富,详情请致电400-052-0378或咨询在线客服。
另外,很多药厂由于规模小投资少,厂房十分紧凑,以至于每间辅助间的面积只有几平方米,甚至只有2平方米,于是工作人员在几乎不能同时容下2人的房间里,不停的开门、转身、关门,以至于近乎晕头转向。
要求严格是好事,但如果矫枉过正就会适得其反,很多工人为了进出方便,往往很多门都不关,很多房间形同虚设。将可以合并的房间合并,将没有必要设置的房间取消,是解决这一问题的办法。例如洗手消毒完全可以当作缓冲间,另外对于低级别洁净室之间,如万级和10万级洁净室之间,不一定非要设置缓冲室,有些场合,三更的设置也是可以考虑的。
缓冲间的设置主要是通过进出两门的不同时开启起到气闸的隔离作用,如果严格管理,一些辅助房间如二更等,完全可以起到缓冲作用。另外,在10万级和万级房间也没有一定设置缓冲的必要。
10万级房间和万级房间内的空气含尘浓度不象一些非专业人士想象的那样相差10倍。门一开启就会污染。事实上,两者相差不多,例如兽药GMP(2002)中规定,10万级房间最低换气次数是15 次/h,万级房间最低换气次数是20 次/h,相差不多,另外由于房间体积普遍较小,例如对于4m²的房间,5 次/h的换气次数仅有50m³/h 左右的送风量,而这50m³/h的送风量是较难调整的,另外,无论设计施工都要适当留有一定余量。
所以,从若干药厂来看,在人员进出路线上的一些小房间,除了名义上的洁净度级别不同外,其换气次数和空气含尘浓度没有什么区别。有时所谓的10万级房间的含尘浓度比万级房间还要低。
以上的观点证明不能以主观意识制订验收标准,应该充分以实际出发考虑问题。精简平面并不影响实际功能,而且可以使人员进出方便简单,节省工程造价,扩大有效使用面积,何乐而不为。同样的问题还出现在三级生物安全实验室的建设中,行业主管部门除了要求加设很多缓冲外,还要求做到人流、物流、洁物、污物各走不同路线,完全分开,但事实上是不可能做到的,也没有必要。
一些政策制订人为强调重视程度或迎合一些需要,提出的“生物安全怎么强调都不过份”的说法是不负责任的,对于工程技术人员来讲必须一切从实际出发,凡事都要有度。只要能完全满足安全需要即可,层层加码是专业知识不足,缺乏自信心的表现。
自SARS以来提出的P3实验室设“三区两缓”(即实验室分为清洁区,半污染区和污染区,不同区域之间必须设缓冲)的要求有待商榷,从国外的一些资料也可以看到,一些发达国家的生物安全实验室平面比我们简单的多,一些危险度不高的实验室设置“两区一缓”就足够了。
制订“三区两缓”的人可能设计工作接触不多,事实上,由于生物安全实验室对压差要求极为严格,“三区两缓”往往要6、7层房间,层层负压,而且要严格保证,无论从设计、施工以及自控上,都是极难保证的。所以还是要从实际出发,让生物安全实验室真正做到安全、实用、经济、可行。
在生物洁净室施工中有一个突出的问题就是圆弧角的使用。
生物洁净室主要以控制细菌等微生物为根本目的,而微生物极易在一些角落里滋生,因此生物洁净室应易于清扫,尽量减少死角,因此在JGJ 71-90《洁净室施工及验收规范中》的第2.3.8条规定:踢脚板部分施工时应与墙面齐平或略缩进2~3mm。
当踢脚板与地面材料相同时可做成小圆角,其圆角半径R 应大于等于50mm;当踢脚板与地面材料不同时,应用弹性材料嵌固。除地面与墙面的交角要求可设圆角外,对其他部位并未做规定。
现在普遍的做法是将所有交角均加装铝合金圆角,由于制作粗糙,使得很多工程的圆角流于形式,甚至作用适得其反。对于墙壁之间,墙壁与顶棚之间的圆角,本来作用不是很大,现在成了施工单位掩盖粗糙接角的“遮羞布”。
对于墙面与地面的交角,其实是十分关键的,但往往成为藏污纳垢,滋生细菌的场所。原因在于:由于圆弧角有厚度,在圆角与板壁和地面的两个交角处,便会形成两个细小的接缝,由于地面、板壁不平,在接缝处往往有很多缝隙,很多施工单位偷工减料,没有打胶密封,有的即使打胶了,也会有开裂的现象。因此本来的目的是为了消除卫生死角,而实际情况却增加了很多隐患。
这种情况在平时不明显,在洁净室进行卫生清扫时就会暴露无遗,地面上一旦有水,水会通过缝隙渗到隔壁房间,圆角下经常满是水渍,成为细菌滋生的绝好场地。造成这种情况的根本原因是对规范的规定没有真正领会,只是流于形式。
对于我国的生物洁净室建设,我们已不能仅仅满足于那种解决“有与没有”的层面,必须提高层次,做到真正实用,而不是应付认证工作,不仅要建,而且一定要建好。
有几种做法值得推荐:
1.安装圆角之后,铺设一定厚度的自流坪地面,彻底消除地面接缝。
2.安装圆角之后,铺装整体卷材地面,然后将卷材沿圆角上铺至壁板,使圆角和地面成为一体。
3.采用建筑材料(如胶砂)砌筑圆弧状的壁板基座,基座与地面做同样的处理,如刷涂料等,使地面和基座成为一体,而且基座作为踢脚部分与墙面齐平或低于墙面。作为洁净室地面,现浇水磨石具有耐磨、完整、耐腐蚀、耐刷洗、造价低廉的特点,在低级别洁净室中是完全可以采用的。
但一些采用水磨石地面的工程却出现了问题:空气中的含尘浓度居高不下,尤其是≥5μm 的大颗粒严重超标,排除过滤器泄露的可能外,发现根本原因在与水磨石地面。很多地方掉灰,甚至可以用指甲划出粉末。
出现这种问题的原因是因为水泥标号不够。在JGJ 71-90《洁净室施工及验收规范》的第2.2.2 条中对洁净室的地面做法有这样的规定:
洁净室涂料地面水泥砂浆基底的水泥标号不得低于425 号;水磨石地面应现浇,所用小石子直径为6~15mm,水磨石磨细后,宜用不挥发的护面材料打涂。一些认证人员认为水磨石地面不可行的观点是片面的,只要遵守规范规定,现浇水磨石完全可以是一种物美价廉的地面材料。一些施工单位偷工减料,采用低标号水泥,玻璃嵌条,而且表面不做任何处理。
其实生物洁净室的特点还很多,实际工程中的问题也很多,我们只有充分了解不同类别洁净室的不同要求和特点,熟悉规范的规定,才能真正把生物洁净室建设好。
广州嘉东提供专业的实验室设计规划,涉及1000+行业案例,规划设计众多行业类型实验室,经验丰富,详情请致电400-052-0378或咨询在线客服。




2020-09-02
微信
微博
更多







